ППР - Патрубок приемо-раздаточный. ППР-80, ППР-100, ППР-150, ППР-250, ППР-400, ППР 500
-
Артикул: 01177. Цена с НДС от 01.10.2018гПатрубок премо-раздаточный ППР-80 2 900,00 грн. В корзину! Удалить из корзины
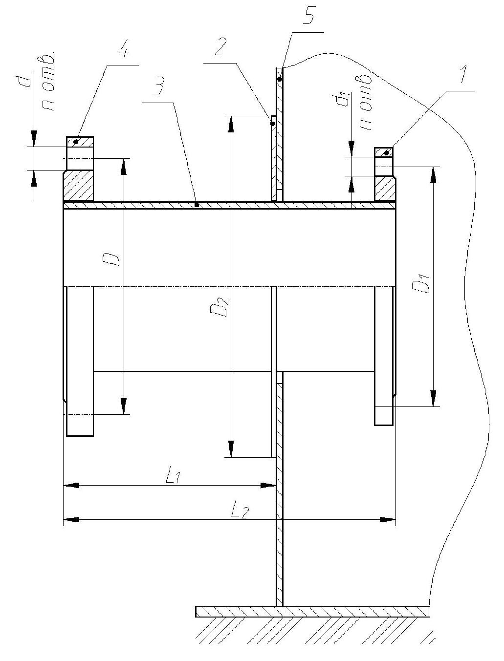
С внешней стороны к нему присоединяется задвижка, а на внутреннем конце, внутри резервуара, устанавливается хлопушка. Через патрубок осуществляется прием в резервуар или выдача из него нефтепродуктов.
| Артикул | Наименование оборудования для АЗС | Цена грн с НДС от 01.10.2018 | |
| 01177 | Патрубок премо-раздаточный | ППР-80,100 | 2900,00 |
| 01178 | ППР-150 | 6480,00 | |
| 01179 | ППР-200 | 8890,00 | |
| 01180 | ППР-250 | 9440,00 | |
| 01181 | ППР-350,400 | 20485,00 | |
| 01182 | ППР-500 | по запросу | |
| 01183 | ППР-600 | по запросу | |
| 01184 | ППР-700 | по запросу | |
Техническая характеристика Патрубков премо-раздаточных ППР:
| Обозначение изделия | ППР-80; ППР-100; ППР-150 |
| Диаметр условного прохода, DN. мм | 80; 100; 150 |
| Присоединительные размеры фланцев на условное давление, МПа(кг/см2) | |
| Для запорной арматуры 1,0(10): | |
| D, мм | 160; 180; 240 |
| d, мм | 18; 18; 22 |
| n, мм | 4; 8; 8 |
| L1, мм | 200 |
| Для хлопушек 0,6(6): | |
| D1, мм | 150; 170; 225 |
| d1, мм | 18 |
| n1, мм | 4; 4; 8 |
| Габаритные размеры, мм, не более | |
| Длина, D2 | 300 |
| Ширина, D2 | 180; 220; 320 |
| Масса, кг, не более | 10; 14; 23 |
| Обозначение изделия | ППР-250; ППР-400 |
| Диаметр условного прохода, DN. мм | 250; 400 |
| Присоединительные размеры фланцев на условное давление, МПа(кг/см2) | |
| Для запорной арматуры 1,0(10): | |
| D, мм | 350; 525 |
| d, мм | 22; 30 |
| n, мм | 12; 16 |
| L1, мм | 250; 400 |
| Для хлопушек 0,6(6): | |
| D1, мм | 335; 525 |
| d1, мм | 22; 30 |
| Габаритные размеры, мм, не более | |
| Длина, L2 | 380; 565 |
| Ширина, D2 | 550; 860 |
| Масса, кг, не более | 49; 180 |
По устойчивости к воздействию климатических факторов внешней среды патрубки ППР изготавливаются в исполнении У и УХЛ, категория размещения 1 по ГОСТу 15150-69.
Пример обозначения при заказе:
ППР-400 УХЛ1, где
400- условный проход;
УХЛ1 - климатическое исполнение.

Цена изделия привязана к межбанковскому курсу у.е.
Заказать и Купить данное устройство можно:
• позвонив по телефону специалистам отдела нефтегазового оборудования +38 057-780-96-49,
• отправив заявку на факс +38 057-707-84-38,
• выслав E-Mail : info@contragent.com.ua
Варианты для поиска: ППР - Патрубки приемо-раздаточные цена, ППР-80 ціна, ППР-100 вартість, ППР-150 срочно, ППР-250 грн. с НДС, где производят, ППР-400 Украина, элементы РЕЗЕРВУАРНЫХ КОНСТРУКЦИЙ, ППР-100 для подсоединения запорной арматуры, ППР-500 завод, ППР-600 производитель, ППР-700 в Украине.
На сегодняшний день качество поставляемых нами приборов оценено жителями следующих регионов Украины:
Симферополь Феодосия Ялта Киев Севастополь Винница Луцк Волынь Владимир-Волынский Днепропетровск Днепродзержинск Жёлтые Воды Кривой Рог Новомосковск Белая Церковь Борисполь Кировоград Александрия Луганск Алчевск Антрацит Лисичанск Брянка Рубежное Северодонецк Старобельск Свердловск Стаханов Сколе Львов Николаев Южноукраинск Одесса Белгород-Днестровский Измаил Ильичевск Каменское Красногоровка Кременчуг Полтава Ровно Донецк Енакиево Краматорск Макеевка Мариуполь Славянск Житомир Бердичев Ужгород Виноградов Мукачево Хуст Запорожье Мелитополь Энергодар Ивано-Франковск ППР-500, ППР-600, ППР-700 Долина Сумы Середина-Буда Ахтырка Конотоп Кролевец Тернополь Лозовая Харьков Ковшаровка Купянск Херсон Новая Каховка Хмельницкий Черкассы Смела Умань Чернигов Новгород-Северский Черновцы...




Комментарии (0)